Attraktives Renditeobjekt in Ternitz: Gepflegtes Mehrfamilienhaus mit Garten!
2630 Ternitz, Mehrfamilienhaus zum Kauf
Kontaktdaten

- NameFrau Michaela Sommer
- PositionHausverwaltung/Vermittlung
- FirmaSchwarzataler Immobilien Treuhandgesellschaft m.b.H
- AnschriftWiener Straße 9
2620 Neunkirchen - Telefon
- Fax+43 2635 627 82 75
Objektdaten
- Objekt-ID2079
- ObjekttypenHaus, Mehrfamilienhaus
- Adresse2630 Ternitz
Niederösterreich - Wohnfläche ca.202,76 m²
- Kellerfläche ca.8,78 m²
- Gartenfläche ca.106,56 m²
- Zimmer8
- Badezimmer2
- Separate WC3
- HeizungsartEtagenheizung, Fußbodenheizung
- Wesentlicher EnergieträgerGas
- Baujahr1900
- Zustandgepflegt
- Heizwärmebedarf (HWB)114,00 kWh/(m²·a) (Klasse D)
- Gesamtenergieeffizienz-Faktor (fGEE)2,13 (Klasse D)
- Käuferprovision7.884,00 € inkl. 20 % USt.
- Kaufpreis pro m²1.080,09 EUR
- Kaufpreis219.000 EUR
Ausstattung / Merkmale
- ✓ Altbau
- ✓ Garten
- ✓ Separates WC
Energieausweis
Objektbeschreibung
Zum Verkauf gelangen zwei eigenständige Wohneinheiten in einem gepflegten Mehrfamilienhaus in zentraler Lage von Ternitz. Beide Wohnungen befinden sich auf einem Grundstück mit insgesamt drei Einheiten, jeweils mit separatem Eingang.
Wichtiger Hinweis: Die Einheiten Top 1 (Erdgeschoss) und Top 2 (Dachgeschoss) werden ausschließlich gemeinsam verkauft.
Diese Kombination eignet sich ideal für:
•
Mehrgenerationenwohnen
•
Eigennutzer mit zusätzlicher Vermietungsmöglichkeit
•
Anleger mit attraktivem Entwicklungspotenzial
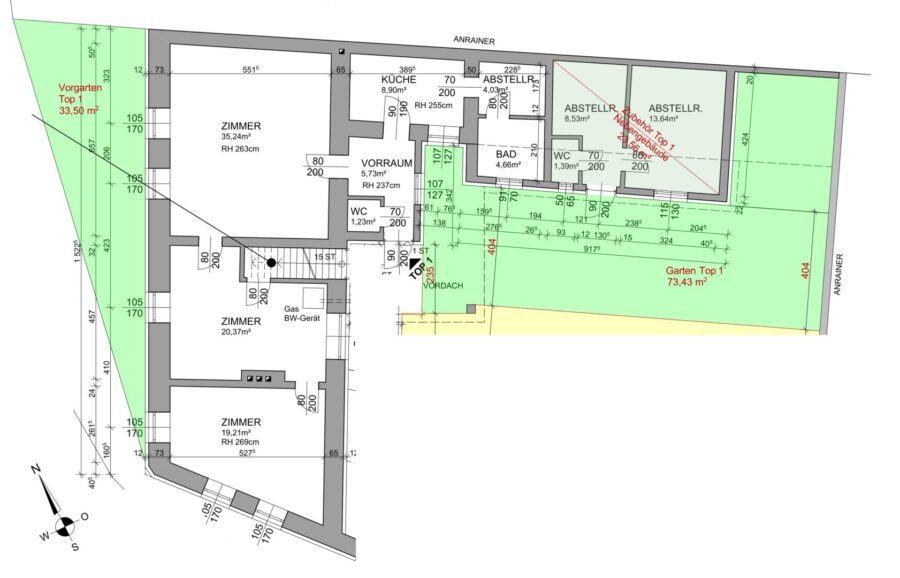
Erdgeschosswohnung mit Garten & Nebengebäude
Die großzügig geschnittene Erdgeschosswohnung verfügt über eine Wohnfläche von rund 122,93 m² und ist über einen separaten Eingang vom Innenhof aus erreichbar.
Raumaufteilung:
•
Vorraum
•
WC
•
Badezimmer mit großer Eckbadewanne
•
Abstellraum
•
Küche
•
Drei großzügige, lichtdurchflutete Zimmer
Von einem der Zimmer aus gelangt man in den rund 8,78 m² großen Keller.
Die Beheizung erfolgt über eine Gas-Zentralheizung mit Fußbodenheizung.
Ein besonderes Highlight ist das zugehörige Nebengebäude im Hof mit zwei Lagerräumen und einem WC. Dieses ist direkt an die Wohnung angeschlossen und bietet Ausbaupotenzial zu zusätzlichem Wohnraum – Heizungs- und Wasseranschlüsse sind bereits vorhanden.
Außenflächen:
•
Garten im Innenhof mit ca. 73,43 m²
•
Vorgarten mit ca. 33,50 m²
•
Überdachter Freibereich, ideal als Terrasse oder Grillplatz gestaltbar
Dachgeschosswohnung mit separatem Zugang
Über einen privaten Stiegenaufgang erreichen Sie die im 1. Obergeschoss gelegene Wohnung mit einer Wohnfläche von rund 79,83 m².
Raumaufteilung:
•
Zentraler Vorraum
•
Badezimmer mit WC
•
Küche
•
Drei Schlafzimmer
Die Wohnung befindet sich in einem gepflegten Zustand und bietet ein angenehmes Wohnambiente.
Beheizt wird mittels Gas-Etagenheizung.
Zusätzliche Einheit – Top 3 (separat zu kaufen)
Auf dem Grundstück befindet sich außerdem eine weitere Einheit (Top 3), welche sanierungsbedürftig ist und über einen eigenen Garten sowie eine Garage verfügt.
Diese Einheit wird separat zum Verkauf angeboten und ist unter der Objektnummer 2076 abrufbar.
Fazit
Diese Liegenschaft bietet Ihnen vielseitige Nutzungsmöglichkeiten – sei es zur Eigennutzung mit zusätzlicher Vermietung, als Mehrgenerationenlösung oder als solides Investmentobjekt mit weiterem Ausbaupotenzial.
Gerne übermitteln wir Ihnen weitere Unterlagen und stehen für einen Besichtigungstermin jederzeit zur Verfügung.
Wir freuen uns auf Ihre Anfrage!
Kaufpreis: € 219.000,00
Nebenkosten:
Grunderwerbssteuer: 3,5 %
Grundbuchseintragung: 1,1 %
Vertragserrichtung
Vermittlungshonorar:
3 % v. Kaufpreis + 20 % USt. = € 7.884,00
Infrastruktur / Entfernungen
Gesundheit
Arzt <1.000 m
Apotheke <1.000 m
Krankenhaus <3.500 m
Klinik <10.000 m Kinder & Schulen
Schule <500 m
Kindergarten <500 m Nahversorgung
Supermarkt <1.000 m
Bäckerei <1.000 m
Einkaufszentrum <1.500 m Sonstige
Bank <1.000 m
Geldautomat <1.000 m
Polizei <2.500 m
Post <1.000 m Verkehr
Bus <500 m
Autobahnanschluss <3.000 m
Bahnhof <1.500 m Angaben Entfernung Luftlinie / Quelle: OpenStreetMap
Lage
Das Haus liegt in der niederösterreichischen Stadt Ternitz. In der näheren Umgebung gibt es verschiedene Annehmlichkeiten wie Einkaufsmöglichkeiten, diverse Freizeit- und Sporteinrichtungen, Ärzte, Apotheken, Kindergärten sowie Schulen aller Schulstufen. Auch der Sportplatz, Banken, Geldautomaten, eine Polizeistation und eine Post sind in der näheren Umgebung zu finden.
In unter 300m gelangt man zum Petersberg, auf dem man spatzieren und den Wald genießen kann.
2630 Ternitz, Niederösterreich, Österreich (auf Google Maps ansehen)



























