Anlageobjekt im Zentrum von Gloggnitz!! KEINE PROVISION, VON PRIVAT! Bis zu 8% Rendite!
2640 Gloggnitz, Haus zum Kauf
Kontaktdaten

- NameHerr Lukas Seitz
- PositionGeschäftsführer
- FirmaSchwarzataler Immobilien Treuhandgesellschaft m.b.H
- AnschriftWiener Straße 9
2620 Neunkirchen - Telefon
- Fax+43 2635 627 82 75
Objektdaten
- Objekt-ID2087
- ObjekttypHaus
- Adresse2640 Gloggnitz
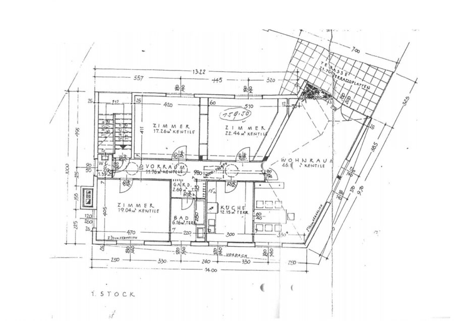
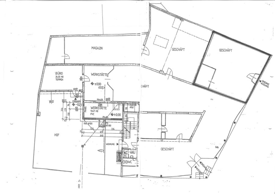
Niederösterreich - Nutzfläche ca.675 m²
- Grundstück ca.665 m²
- Wesentlicher EnergieträgerGas
- Baujahr1968
- Heizwärmebedarf (HWB)192,30 kWh/(m²·a) (Klasse F)
- Gesamtenergieeffizienz-Faktor (fGEE)2,02 (Klasse D)
- Sonstige PreisangabenPreis auf Anfrage!
- Kaufpreis885.000 EUR
Ausstattung / Merkmale
- ✓ Außenstellplatz
- ✓ Balkon/Terrasse Süd
Energieausweis
Objektbeschreibung
Dieses attraktive Anlageobjekt befindet sich in bester Lage im Zentrum von Gloggnitz, Niederösterreich. Es besteht aus einem Geschäftslokal, einem Friseursalon und einer flexibel nutzbaren Einheit, die als Wohnung oder Büro genutzt werden kann. Das Objekt wurde in den letzten Jahren umfangreich modernisiert und bietet dadurch hervorragende Investitionsmöglichkeiten.
Investitionen in den letzten Jahren:
- Neues Glasvordach beim Friseur: 2024
- Elektroinstallationen im Obergeschoss: 2024
- Flachdacherneuerung: 2024
- Parkettböden im Büro: 2023
- Heizungserneuerung: 2023
- Fenster: 2020
- Zaun und Einfahrtstore
Einnahmen und Rendite:
- Einnahmen netto bei Vollvermietung: rund € 70.000,00; Rendite 8 %
Highlights:
- Zentrale Lage im Herzen von Gloggnitz
- Umfangreiche Modernisierungen und Investitionen
- Vielseitig nutzbare Einheiten (Gewerbe)
- Attraktive Renditemöglichkeiten über die nächsten Jahre
- Langjährige Mieter (Modegeschäft und Friseur seit über 20 Jahren)
Kontakt: Für Besichtigungen oder Fragen zum Objetk steht Ihnen der Eigentümer Herr Blum unter 0676/9331514 zur Verfügung.
Kaufpreis: 885.000,00
Nebenkosten:
Grunderwerbssteuer: 3,5 %
Grundbuchseintragung: 1,1 %
Vertragserrichtung
Infrastruktur / Entfernungen
Gesundheit
Arzt <500 m
Apotheke <500 m
Klinik <500 m Kinder & Schulen
Schule <500 m
Kindergarten <500 m Nahversorgung
Supermarkt <500 m
Bäckerei <500 m
Einkaufszentrum <500 m Sonstige
Bank <500 m
Geldautomat <500 m
Post <500 m
Polizei <500 m Verkehr
Bus <500 m
Bahnhof <1.000 m
Autobahnanschluss <2.000 m Angaben Entfernung Luftlinie / Quelle: OpenStreetMap
Lage
Die Liegenschaft befindet sich in bester Lage im Stadtzentrum am Hauptplatz in der Stadtgemeinde Gloggnitz im südlichen Niederösterreich.
In unmittelbarer Nähe befinden sich Cafés, Restaurants, Banken, Ärzte, Modegeschäfte und zahlreiche Einkaufsgelegenheiten.
Der Bahnhof Gloggnitz (gelegen an der Südbahn) ist weniger als 1 km von der Liegenschaft entfernt und zu Fuß in unter 10 Minuten zu erreichen.
Die Autobahnauffahrt Gloggnitz (S6) ist mit dem Auto in unter 5 Minuten erreichbar.
Gloggnitz ist auch als die Einkaufsstadt im oberen Schwarzatal bekannt.
2640 Gloggnitz, Niederösterreich, Österreich (auf Google Maps ansehen)












